vendita casa singola Massarosa
Pubblicato il 07 gennaio 2026 alle ore 23:04









TERRENI EDIFICABILI CON PROGETTO APPROVATO – PIAN DI MOMMIO (LU)
In località Pian di Mommio, in posizione strategica a breve distanza da tutti i principali servizi, proponiamo in vendita ultimi 3 lotti edificabili facenti parte di un intervento di lottizzazione già definito e approvato.
L’area è suddivisa complessivamente in 6 lotti, ciascuno con superficie fondiaria di circa 600 mq.
Ultimi tre lotti disponibili!
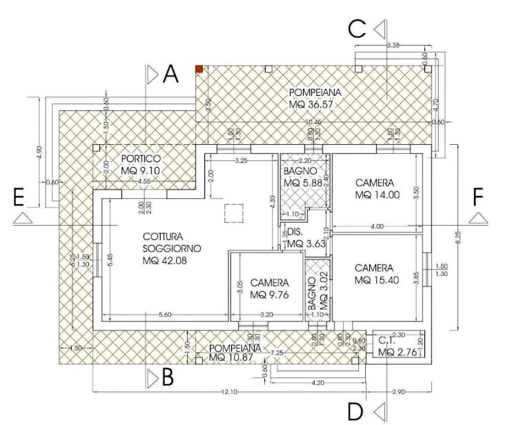
Il progetto approvato prevede la realizzazione di una villa unifamiliare così composta:
Porticato di ingresso
Zona giorno con soggiorno e angolo cottura open-space
Tre camere da letto
Due servizi igienici
Giardino esclusivo su quattro lati
Posti auto interni alla proprietà
Opere accessorie e ampliamenti
Possibilità di realizzare garage con superficie superiore a 20 mq
Possibilità di taverna seminterrata
Oneri di urbanizzazione e costi concessori a carico della parte acquirente
Documentazione tecnica completa disponibile (progetto, tavole, elaborati urbanistici)
Maggiori informazioni, planimetrie e documentazione tecnica sono consultabili presso la nostra agenzia previo appuntamento.
WALK IMMOBILIARE. Via dei Lecci 134. 0584/1570032.
- Invia ad un amico
- Segnala abuso