vendita casa singola Massa
Pubblicato il 29 dicembre 2025 alle ore 23:17












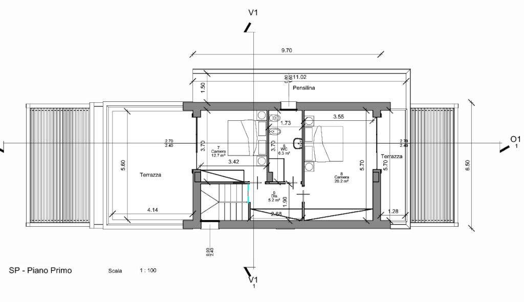
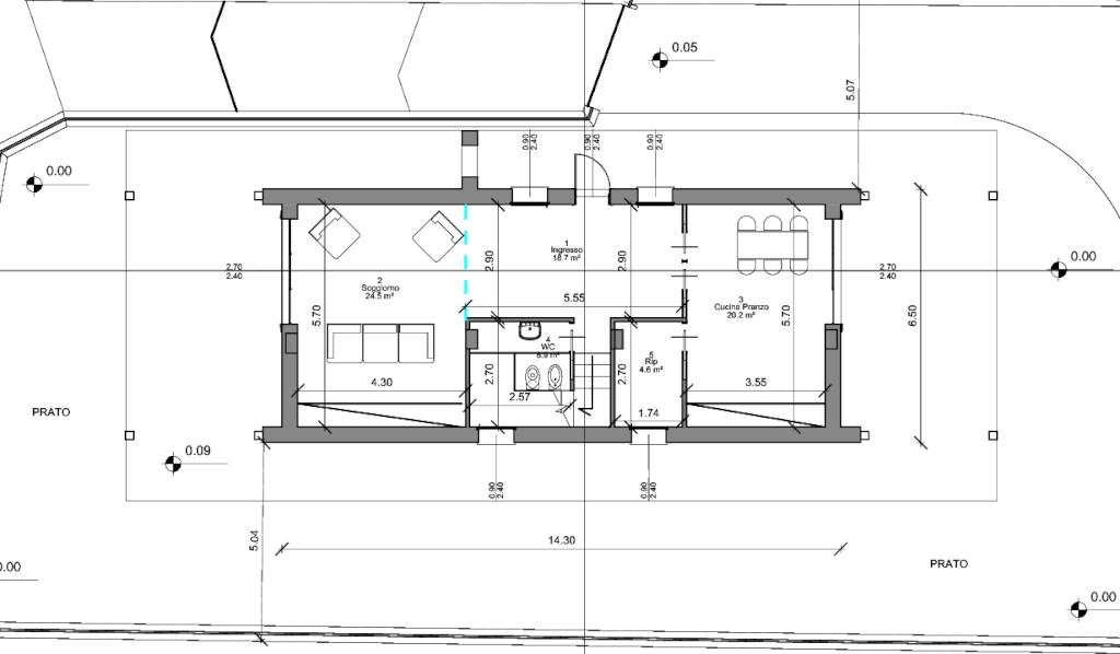
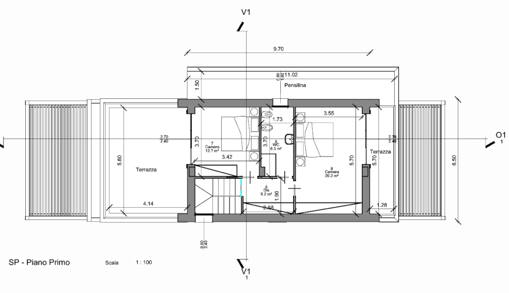
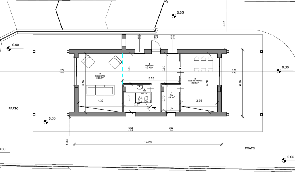
Massa, località Ortola a 500 metri dal centro città si vende lotto di terreno di circa 500 metri quadrati sul quale è possibile edificare una villa singola su due piani di 120 metri calpestabili completamente personalizzabile. E' stata predisposta un'ipotesi di progetto in base alla cubatura utile che si sviluppa su due piani: al piano terra si compone di ingresso, soggiorno con accesso a pergola esterna che gode di una bellissima esposizione sud ovest, ampia cucina pranzo con accesso esterno a pergola per piacevoli pranzi all'aperto e un comodo bagno; al piano primo abbiamo la zona notte con grande camera matrimoniale (20 mq) con accesso a terrazza, seconda camera di 13 mq con accesso a terrazza di 23 mq, disimpegno e bagno. Il progetto può essere personalizzato a piacimento e secondo le proprie esigenze.
- Invia ad un amico
- Segnala abuso