Vendita Casa singola Castelfiorentino
Pubblicato il 31 ottobre 2025 alle ore 09:04
























NUOVA PROPOSTA
IMMOBILE DISPONIBILE
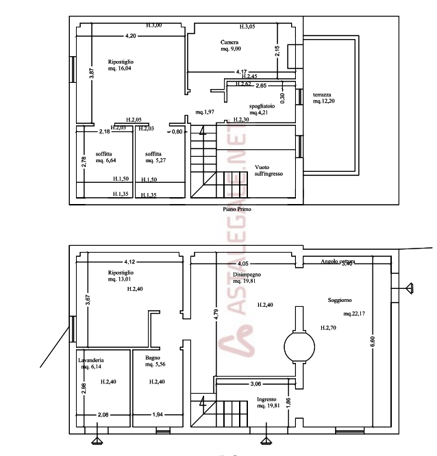
Abitazione posta in comune di Castelfiorentino (FI) in Via Pietro Bersellini che si sviluppa su due piani, terreno e primo con ampio giardino. L'immobile è composto da una zona soggiorno con angolo cottura ed il bagno, oltre ad un locale disimpegno, ripostiglio ed un locale lavanderia con accesso dall'esterno. Al piano primo, al quale si accede tramite una scala interna a giorno, vi è una camera dalla quale si accede al terrazzo, camera ripostiglio, locale spogliatoio e due locali soffitta.
Per te la possibilità di ricevere una consulenza telefonica personalizzata per ottenere un preventivo per il mutuo a condizioni vantaggiose con i nostri partner, il consulente ti fornirà tutte le informazioni e ti guiderà nelle possibilità di aggiudicarti questo affare.
L'immobile pubblicato al momento è sottoposto a procedura di vendita legale;
Gescom srl è specializzata nella ricerca e pianificazione di investimenti immobiliari secondo innovative strategie di acquisto.
Contattaci subito per una consulenza telefonica con uno dei nostri esperti, che ti aiuterà a valutare canali distinti di acquisto dell'immobile, come la procedura di vendita diretta senza ricorrere all'asta (d.lgs. 149/2022) e la possibilità di stralcio immobiliare.
Le informazioni sopra riportate non sostituiscono l'avviso pubblicato dal Tribunale competente né l'integrale gestione da parte del delegato designato. Il testo e le specifiche indicate nella presente pagina sono generate automaticamente tramite l'utilizzo di software e/o da A.I. Gescom srl invita a verificare le formazioni e i materiali multimediali sui canali ufficiali, declinando fin d'ora ogni responsabilità su eventuali errori o incongruenze.
Gescom srl, leader negli stralci immobiliari e nella consulenza tecnico-legale, non si occupa di attività di intermediazione immobiliare di cui alla legge 39/89. Cl. energ. da verificare.
Le foto pubblicate nel presente annuncio sono indicative e non esaustive della tipologia, qualità, consistenza e indicazione geografica dell'immobile.
CLASSE ENERGETICA: A
- Invia ad un amico
- Segnala abuso