vendita casa semindipendente Camaiore
Pubblicato il 24 dicembre 2025 alle ore 23:18


Pieve Di Camaiore - Camaiore
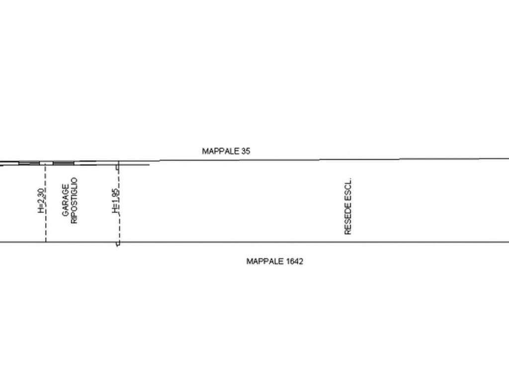
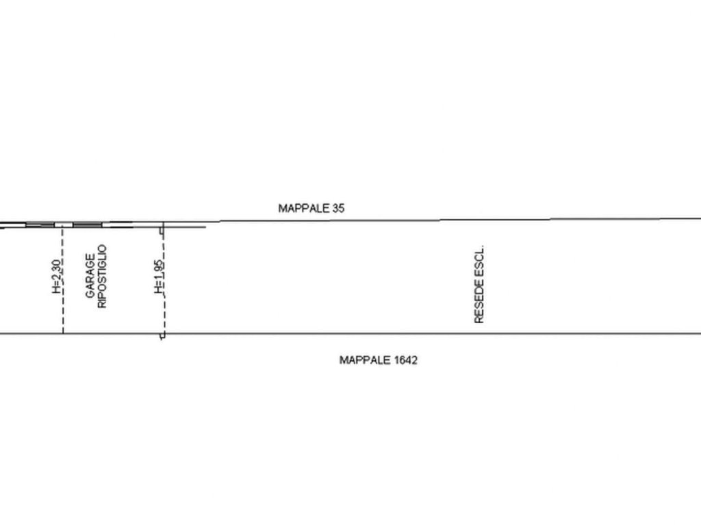
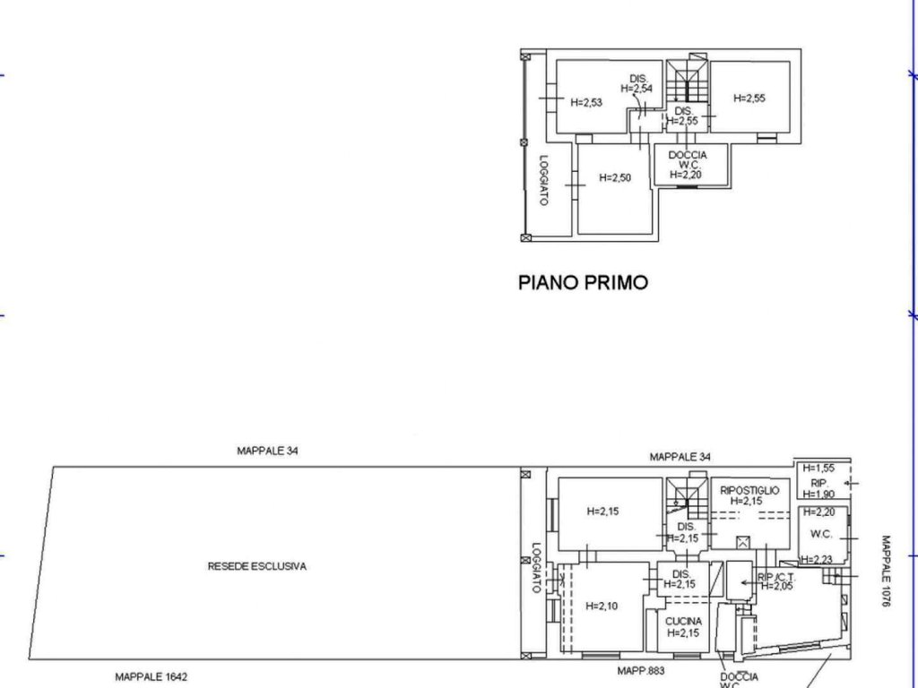
In zona tranquilla, a pochi passi dalla Pieve di Camaiore, e inserita in un giardino di circa 1000 mq, proponiamo in vendita
una casa semi-indipendente suddivisa su due livelli.
L'immobile necessita di essere ristrutturato, la conformazione e le distanze consentono l'ampliamento.
PER MOTIVI DI PRIVACY ALCUNI DATI POTREBBERO ESSERE INDICATIVI.
* * *
Se decidi di acquistare questo immobile devi sapere che questa abitazione è di proprietà di un venditore privato. Il calcolo delle imposte si applica in due modi distinti a seconda se chi acquista lo intesti come prima o seconda casa. Devi sapere che oltre a pagare il prezzo che concorderai con il Venditore dovrai sostenere il pagamento di alcune spese accessorie (imposta di registro, imposta catastale, imposta ipotecaria) oltre agli onorari dei vari professionisti (notaio, tecnico ed agente immobiliare). QUANTO SPENDO PER ACQUISTARE QUESTA CASA? PREZZO PATTUITO + SPESE ACCESSORIE + ONORARI
* * *
CaseBelleVersilia, al fianco delle tue scelte
Compravendite
Affitti annuali
Gestione case vacanza
Attività
- Invia ad un amico
- Segnala abuso