Vendita CASA INDIPENDENTE Borgomezzavalle
Pubblicato il 13 dicembre 2025 alle ore 23:50























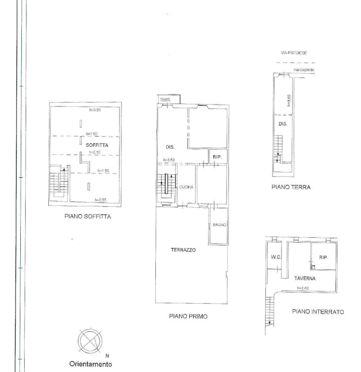
Zona Via Pistoiese,
l'Agenzia Immobiliare Casa Online di Prato propone in vendita un terratetto disposto su tre livelli completamente ristrutturato con un terrazzo di 100 mq c.a..
Internamente l'immobile è composto da: ingresso con accesso alla taverna di mq 55 c.a. suddivisa in tre locali oltre servizio igienico.
Da una scala signorile accediamo al piano primo dove troviamo un ampio e luminoso salone doppio con caminetto, (con possibilità di ricavare una camera matrimoniale), una cucina abitabile in muratura con accesso ad uno splendido terrazzo panoramico di c.a. 100 mq con un annesso in muratura corredato di forno per pizza, barbecue e lavanderia, una camera matrimoniale ed un servizio igienico finestrato.
Al piano secondo troviamo tre locali ad uso soffitta con un altezza massima di 2,10 m che ne consente un buon utilizzo.
Internamente l'immobile si presenta in ottime condizioni con finiture di pregio, ideale per una famiglia numerosa o per investimento date le molte richieste di locazione relative alla tipologia dell'immobile e alla zona dov'è situato.
Per motrivi di privacy, l'indirizzo pubblicato sull'annuncio non è reale.
- Invia ad un amico
- Segnala abuso