vendita attico/mansarda Empoli
Pubblicato il 05 febbraio 2026 alle ore 23:17






















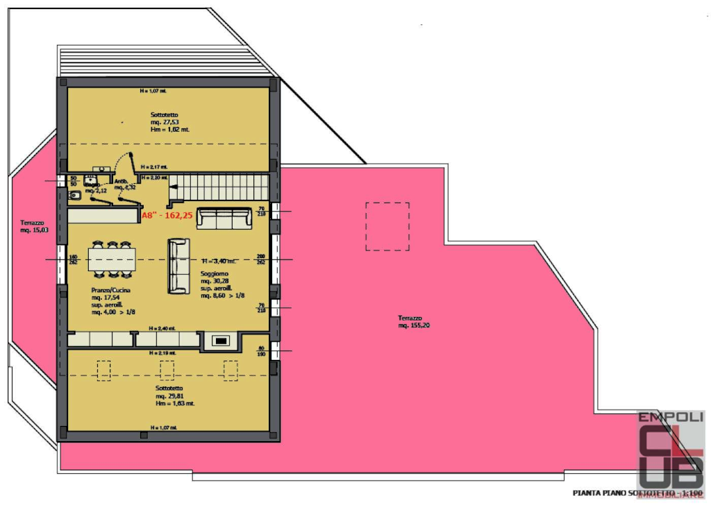
CAPOLUOGO - Empoli- RIF. F/0551 - CON LA CONSULENZA E L'INTERMEDIAZIONE DELL'AGENZIA EMPOLI CLUB IMMOBILIARE. SUPERATTICO IN PALAZZINA NUOVA POSTA FRA LA STAZIONE FERROVIARIA E PIAZZA DELLA VITTORIA, PROGETTATA ARCHITETTONICAMENTE E TECNOLOGICAMENTE NEI MINIMI DETTAGLI AL FINE DI OFFRIRE ALL’UTENZA FINALE UN PRODOTTO DI ASSOLUTA QUALITA’ IN CUI RISPARMIO ENERGETICO, FUNZIONALITA’, COMFORT, PRIVACY, RISULTANO ESSERE I PRINCIPALI OBIETTIVI. I MATERIALI PER LA REALIZZAZIONE DELL’INVOLUCRO EDILIZIO IN COMBINAZIONE CON LE SOLUZIONI IMPIANTISTICHE ADOTTATE PERMETTONO DI GARANTIRE A QUESTA SPLENDIDA ED UNICA UNITA’ IMMOBILIARE UNA CERTIFICAZIONE ENERGETICA VIRTUOSA E SUPERIORE A QUANTO RICHIESTO DALLA NORMATIVA VIGENTE. L'APPARTAMENTO SUPER LUSSO DENOMINATO A-8, SI TROVA AL PIANO TERZO E QUARTO, CONTA CIRCA mq 230 dei quali 67 destinati a sottotetto, con 3 terrazze per totali mq 210, zona soggiorno-pranzo-cucina open, tre camere tre servizi, box auto doppio di mq 30 due posti auto. Sul fronte zona giorno l'inimitabile terrazza abitabile di mq 155. Affaccio a 360° sull’intera città. AUTOMAZIONI, DOMOTICA, ALLARME, ZANZARIERE, OSCURAMENTO CON PANNELLI FRANGISOLE, FOTOVOLTAICO. Nell'area foto alcune soluzioni di arredo proposto che potrà essere studiato assieme a professionista a voi dedicato all'interno dell'agenzia immobiliare. UNICO!! Classe energetica: A4 - Rif. F/0551 euro 850.000,00
- Invia ad un amico
- Segnala abuso