Vendita Appartamento Vicenza
Pubblicato il 03 novembre 2025 alle ore 09:33











Offerta minima EURO 54.750,00
Rialzo minimo EURO 1.000,00
Data asta 25/11/2025
Questo immobile rappresenta una delle soluzioni presenti nella tua città, se vuoi conoscerne altre, non esitare a contattarci senza impegno.
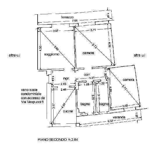
Piena proprietà di appartamento al secondo piano con cantina al piano terra e sottotetto di uso comune utilizzato come ripostiglio sito nel Comune di Vicenza (VI), Via Amerigo Vespucci n. 5 int. 3. L'immobile è composto da cucina, soggiorno, corridoio centrale, due camere, due servizi igienici, terrazzo e veranda. L'unità abitativa sviluppa una superficie di circa 84 mq oltre al terrazzo di circa 15 mq e alla cantina di circa 4 mq.
Per ulteriori informazioni e visite contattare il numero +39 351 6343800 o 0459782475.
La nostra Agenzia, specializzata e riconosciuta, si occupa esclusivamente di Aste Immobiliari.
Ci occupiamo della ricerca di procedure esecutive e concorsuali fornendo una consulenza tecnico legale, bancaria completa per la partecipazione all'asta e per l'acquisto dell'immobile.
I nostri servizi comprendono:
Analisi della procedura esecutiva e valutazione del compendio immobiliare.
Assistenza e Partecipazione all'asta fino all'assegnazione dell'immobile tramite, decreto di trasferimento o acquisto con rogito notarile.
Ricerca migliore tipologia di finanziamento con gli istituiti di credito convenzionati con i Tribunali per l'acquisto dell'immobile in Asta.
CLASSE ENERGETICA: G
- Invia ad un amico
- Segnala abuso