vendita appartamento Siena
Pubblicato il 07 dicembre 2025 alle ore 23:18
















Vico Alto
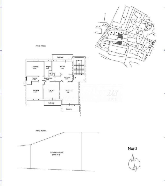
Elegante appartamento in vendita a Siena, situato a secondo ed ultimo piano con una superficie di 120 mq, piu' garage di proprieta'
Completamente ristrutturato nel 2023, questo immobile offre un'esposizione sud ovest, garantendo luminosità e comfort. Dotato di ingresso tradizionale e ubicato al 2° piano, l'appartamento presenta finiture di pregio e un'ottima distribuzione degli spazi., sviluppato in un unico livello con ingresso, sala grande e terrazzo ampio, cucina abitabile, tre ampie camere, di cui una terrazzata e due bagni finestrati, inoltre a concludere la proprieta' sono presenti cantina, garage e giardino staccato di 90 mq. Canna fumaria presente in sala con possinbilita' di installare camino.
Dispone di utenze singole.
Spese condominiali irrisorie mensili.
Prezzo di vendita: 445000 Euro trattabili.
- Invia ad un amico
- Segnala abuso