Vendita Appartamento Rubano
Pubblicato il 23 gennaio 2026 alle ore 21:17










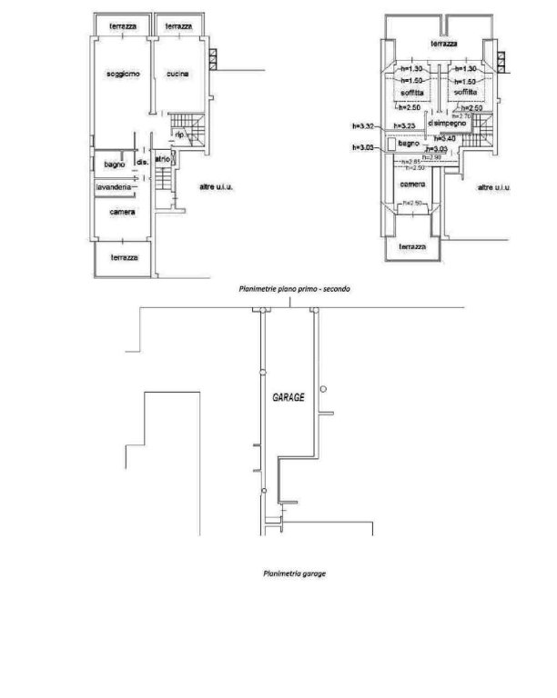
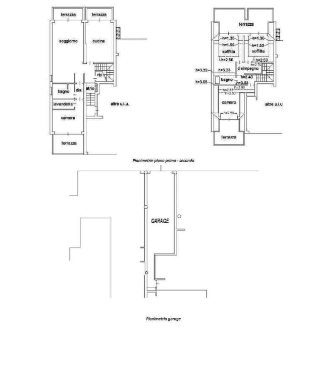
Appartamento sviluppato su due livelli, composto al primo piano da: ingresso, soggiorno e cucina entrambi con accesso alla terrazza, bagno finestrato, disimpegno e camera con terrazza;
al piano secondo (sottotetto) da:
due locali soffitta con accesso su unico terrazzo, disimpegno, bagno e camera con terrazza;
garage al piano semi interrato.
L'immobile viene venduto tramite asta giudiziaria.
Il prezzo indicato si riferisce all'offerta minima accettata per la partecipazione.
MetroQuadro fornisce un servizio di assistenza al fine di rendere più facile e sicuro l'acquisto di un immobile proveniente dal mercato giudiziario: analisi preventiva, conteggio costi accessori ed occulti, assistenza in tutte le fasi della procedura, compresa la liberazione dell'immobile se occupato.
L'acquisto dell'immobile puó essere totalmente finanziato tramite mutuo.
Consulenza gratuita per un possibile mutuo con un nostro consulente del credito.
CLASSE ENERGETICA: Non Dichiarata (Classe Energetica non disponibile)
- Invia ad un amico
- Segnala abuso