vendita appartamento Pisa
Pubblicato il 14 marzo 2026 alle ore 23:33






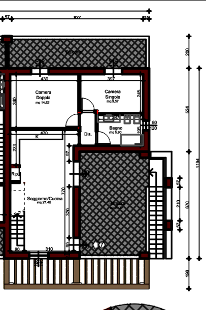
PISA - PUTIGNANO, appartamento di nuova costruzione, situato al piano primo con ingresso indipendente.
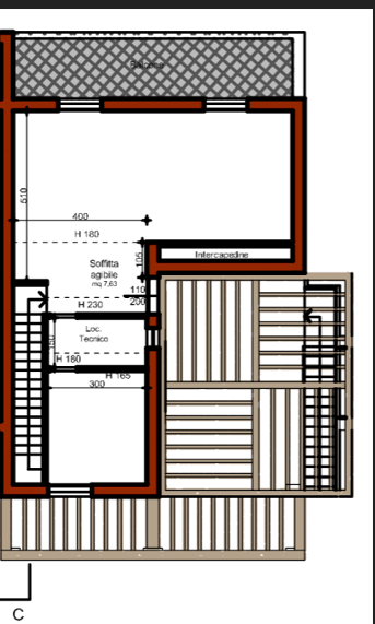
L'immobile si compone di ingresso tramite scala esterna e un bel TERRAZZO ABITABILE di 25 MQ, ingresso in soggiorno con angolo cottura, disimpegno, due camere con secondo terrazzo di 15 mq e un bagno; al piano superiore troviamo un sottotetto praticabile da poter adibire a 3° camera e studio con piccolo balcone-loggiato. Di pertinenza un GIARDINO DI 250 mq e due POSTI AUTO.
Il complesso immobiliare è in fase di costruzione e proposto in classe energetica A4, dotato di riscaldamento a pavimento, pannelli fotovoltaici, predisposizione per condizionatori e allarme; possibilità di scegliere ancora le rifiniture interne.
Consegna prevista a fine 2026.
No sono previste spese condominiali, offrendo così un ulteriore vantaggio economico.
Prezzo di vendita: 300.000 Euro.
Facciamo presente alla gentile clientela che gli indirizzi riportati sugli annunci sono puramente indicativi.
- Invia ad un amico
- Segnala abuso