vendita appartamento Pisa
Pubblicato il 04 marzo 2026 alle ore 23:19

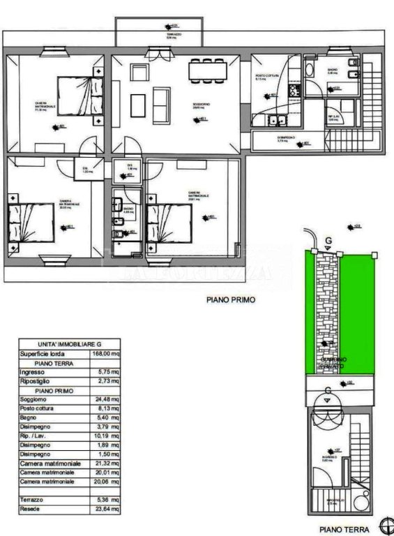
SAN MICHELE: riqualificazione di appartamento indipendente posto al piano primo ed avente ingresso da resede privato di circa 25 mq. Composizione interna: al piano terra comodo ingresso con spazio guardaroba e ripostiglio; al primo piano, mediante scala interna, si accede all' ampio soggiorno/pranzo con balcone, alla zona cottura, al disimpegno notte, alle tre camere matrimoniali e ai doppi servizi. Completano la proprietà un comodo garage di circa 20 mq. ed un posto auto esclusivo all’interno del complesso immobiliare. SGRAVI FISCALI SISMA BONUS PARI AD € 96 MILA IN 10 ANNI.
- Invia ad un amico
- Segnala abuso