vendita appartamento Pisa
Pubblicato il 18 gennaio 2026 alle ore 23:18






L027 – PISA - Splendido appartamento di nuova costruzione, situato al piano primo con ingresso INDIPENDENTE tramite un BEL GIARDINO DI CIRCA 200 MQ.
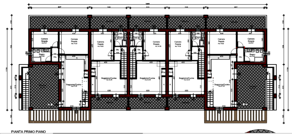
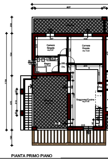
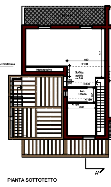
L'immobile, con una superficie di 80 mq oltre 50 mq di MANSARDA si compone di ingresso tramite scala esterna e ripostiglio nel sottoscala, accesso diretto ad una bella TERRAZZA ABITABILE DI 25 MQ con pergolato, soggiorno con angolo cottura, nel disimpegno notte troviamo due camere da letto con accesso al terrazzo di 15 mq e un bagno finestrato; dal soggiorno tramite comoda scala si accede alla mansarda nella quale è possibile ricavare un'altra camera da letto e uno studio dotato di una piccola loggia. L'immobile è esposto su tre lati garantendo luminosità in ogni angolo.
DI PERTINENZA DUE POSTI AUTO.
PROPOSTO IN CLASSE "A4"
Questo appartamento a lavori ultimati sarà dotato di sistema di riscaldamento a pavimento radiante, predisposizione allarme, videocitofono, ottimo isolamento acustico, pannelli fotovoltaici, tutto per un risparmio energetico e rappresenta un'opportunità unica per chi cerca un'abitazione all'avanguardia e sostenibile. Non sono previste spese condominiali, offrendo così un ulteriore vantaggio economico.
Posizionato in zona strategica questa proprietà è ideale per chi desidera vivere comodamente in una zona centrale e ben servita, senza rinunciare agli spazi esterni.
Consegna prevista autunno 2026
Capitolato e progetti visionabili presso l'agenzia. Possibilità di scegliere le rifiniture!
Prezzo di vendita: 300.000 Euro.
- Invia ad un amico
- Segnala abuso