vendita appartamento Pisa
Pubblicato il 15 novembre 2025 alle ore 23:18














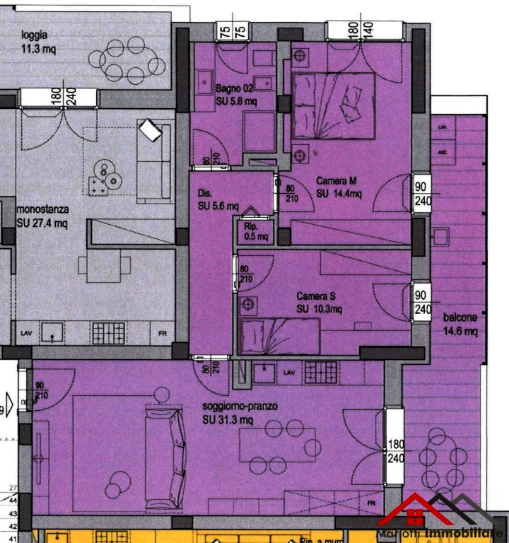
Rif. L.800.9 ESCLUSIVA – PORTA NUOVA – A 900 metri da Piazza dei Miracoli, in nuova costruzione, proponiamo spazioso e trilocale di 77 mq ubicato al piano primo con ingresso in ampio soggiorno - pranzo, cucina semi abitabile, camera matrimoniale, camera singola, antibagno e bagno finestrato. Bella terrazza abitabile con vista diretta sulla "torre di Pisa". Completano la proprietà 2 posti auto esclusivi, posto moto di proprietà e comoda e ampia cantina. Finiture di pregio, pavimento radiante, impianto solare e fotovoltaico. Predisposizione VMC (ventilazione meccanica controllata)me fibra: colonnina ricarica elettrica. Alto risparmio energetico. Consegna dicembre 2026. Classe energetica A4. Euro 330000.
- Invia ad un amico
- Segnala abuso