Vendita Appartamento Ospedaletto Euganeo
Pubblicato il 27 ottobre 2025 alle ore 20:19






















 
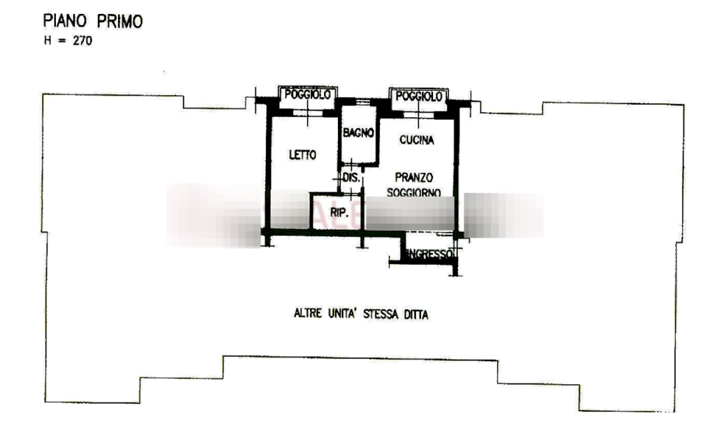
							Appartamento al primo piano con annessa autorimessa in contesto condominiale denominato 'Condominio Canevare 2' situato a Ospedaletto Euganeo (PD) in via Ada Negri, composto da un ingresso, sala da pranzo-cucina con poggiolo, una camera da letto con poggiolo, un bagno ed un ripostiglio.
Stato di occupazione: Contratto di locazione in essere opponibile alla procedura con scadenza al 31.05.2026.
22REB è a disposizione per valutare come la nostra esperienza potrà favorirti nel realizzare il tuo miglior investimento.
L'immobile è oggetto di vendita giudiziaria.
22REB non si occupa di attività di intermediazione imm. di cui alla legge 39/89. Per motivi di privacy la foto dell'immobile/terreno è indicativa ma non esaustiva.
CLASSE ENERGETICA: In fase di valutazione (Classe Energetica in fase di richiesta)
- Invia ad un amico
- Segnala abuso