Vendita Appartamento Novara
Pubblicato il 11 febbraio 2026 alle ore 09:02

















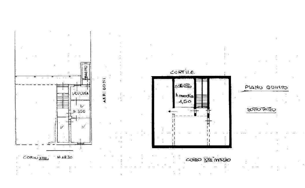
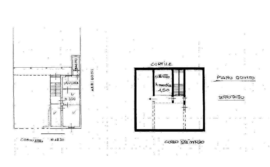
Novara Porta Mortara interessante appartamento a pochi passi dal centro storico ottimo anche per uso investimento sito al piano terzo con ascensore recentemente installato composto da ingresso soggiorno con cucina a vista camera da letto matrimoniale cameretta bagno due balconi soffitta doppia esposizione Libero al Rogito !!!
Si specifica che l'impianto di riscaldamento e' di tipo centralizzato con contabilizzatori di consumo percui le spese coindominiali indicate sono comprensive della sola quota fissa su base millesimale con esclusione della quota a consumo.
Le spese indicate non sono comprensive della gestione ascensione in quanto lo stesso e' stato messo in funzione a dicembre 2024 percui ci sara' sicuramente un sensibile aumento delle stesse .
L' Agenzia Prospettivecasa fa parte del Centro Immobiliare Novara - CONCLIENTE -. Concliente ti offre la forza unita di 9 Agenzie che lavorano in esclusiva per Te per offrirti un servizio unico sul territorio novarese. Se vuoi vendere o comprare una casa, un professionista del team Concliente sarĂ a tua disposizione personale. CONCLIENTE, LA PIU' VELOCE SQUADRA IN CITTA', 9 AGENZIE, 1 PROVVIGIONE. Visita il sito www. prospettivecasa.com www.concliente.it
CLASSE ENERGETICA: In fase di valutazione (Classe Energetica in fase di richiesta)
- Invia ad un amico
- Segnala abuso