Vendita Appartamento Milano
Pubblicato il 16 marzo 2026 alle ore 09:18
























NUOVA PROPOSTA
IMMOBILE DISPONIBILE
Trattasi di un appartamento nel comune Milano MI, in viale Faenza.
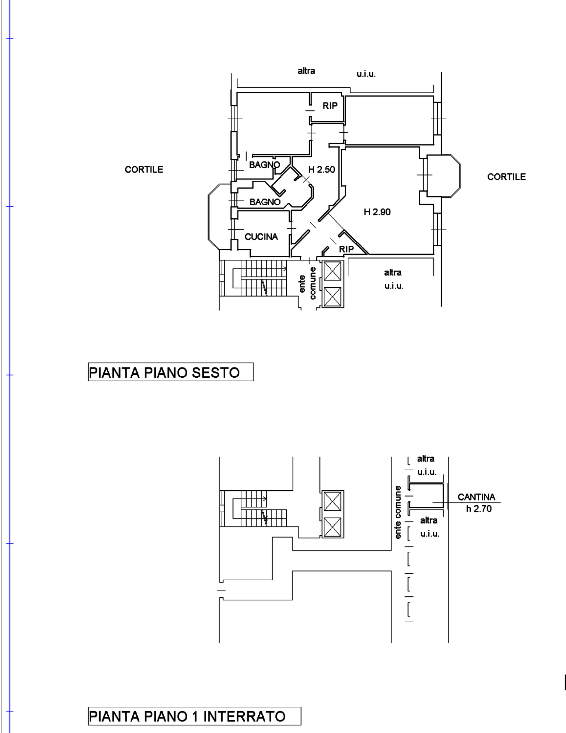
Appartamento al sesto piano (settimo fuori terra).
Appartamento composto da ingresso, sala soggiorno-pranzo, due camere, due bagni, disimpegno, cucina abitabile, due sgabuzzini, controsoffitto parzialmente ispezionabile e cabina armadio, due balconi; oltre locale cantina al piano interrato.
Questo immobile offre spazi funzionali e accoglienti per godere appieno di una vita confortevole e rilassante.
Per te la possibilità di avere un preventivo per il mutuo a condizioni vantaggiose con i nostri partner.
Ulteriori dettagli, foto degli interni, planimetrie e altre info, se disponibili, saranno consultabili previo appuntamento nella sede di MILANO con GERMANA che inoltre ti informerà sulle possibilità di aggiudicarti questo affare.
L'immobile pubblicato al momento è sottoposto a procedura di vendita legale; Gescom srl è specializzata nella ricerca e pianificazione di investimenti immobiliari secondo innovative strategie di acquisto. Contattaci subito potrai valutare assieme a un nostro tecnico canali distinti di acquisto dell'immobile, procedura di vendita diretta senza ricorrere all'asta (d.lgs. 149/2022) e ancora stralcio immobiliare. Le informazioni sopra riportate non sostituiscono l'avviso pubblicato dal Tribunale competente ne' l'integrale gestione da parte del delegato designato. Il testo e le specifiche indicate nella presente pagina sono generate automaticamente attraverso l'utilizzo di software e/o da A. I., Gescom srl invita a verificare le formazioni e i materiali multimediali sui canali ufficiali, declinando fin d'ora ogni responsabilità su eventuali errori o incongruenze.
Gescom Italia srl leader negli stralci immobiliari e nella consulenza tecnico legale, non si occupa di attività di intermediazione imm. di cui alla legge 39/89.
Cl. energ. da verificare.
Le foto pubblicate nel presente annuncio sono indicative e non esaustive della tipologia, qualità, consistenza e indicazione geografica dell'immobile
CLASSE ENERGETICA: A
- Invia ad un amico
- Segnala abuso