vendita appartamento Massa
Pubblicato il 16 marzo 2026 alle ore 23:34
























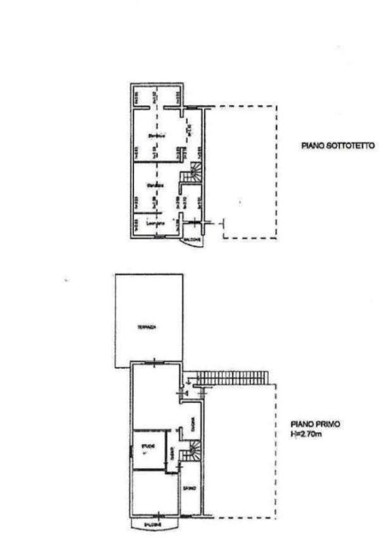
Rif. C 131 A poche centinaia di metri dal centro, in elegante contesto quadrifamiliare , splendido appartamento di 106 mq , completamente ristrutturato e personalizzato con gusto e pregio, (costruzione del 2007) situato al primo piano e internamente disposto su due livelli.
L' immobile è una soluzione moderna, raffinata e ideale per clienti che cercano una casa pronta da vivere con stile e confort.
L'immobile si distingue per la cura dei dettagli e per ambienti accoglienti che trasmettono pace e quiete.
L'ingresso introduce in una luminosissima zona giorno con ampia sala e cucina separata, disimpegno con camera matrimoniale balconata con vista Castello, cameretta/studio e bagno con vasca, molto bello , con eleganti mosaici.
Al piano superiore , ampia zona notte mansardata ( altezza al colmo circa 3 metri) suddivisa in zona notte, studio e bagno con doccia ed illuminata oltre che da finestre da grandi lucernai velox.
Ma la chicca dell' immobile e la splendida terrazza di 35 mq , paradiso per cene con amici o semplici colazioni, dotata di pergotenda .
Completano la proposta un posto auto di proprietà, piuttosto lungo ,che potrebbe anche ospitare due utilitarie in contemporanea.
Viene venduta parzialmente arredata, climatizzata e allarmata perimetralmente.
- Invia ad un amico
- Segnala abuso