Questo sito utilizza cookie di profilazione, anche di terze parti, per fornirti servizi e pubblicità in linea con le tue preferenze. Se chiudi questo banner o prosegui con la navigazione ne accetti l'utilizzo. Per maggiori informazioni su come modificare il consenso e le impostazioni dei browser clicca qui

vendita appartamento Lucca

Pubblicato il 29 dicembre 2025 alle ore 23:16

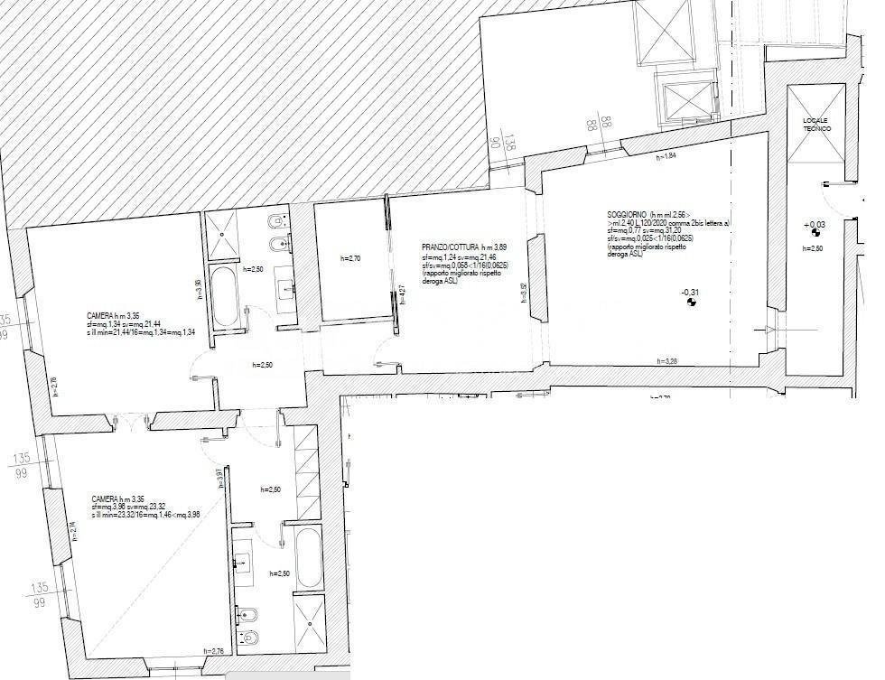
N525J Centro Storico .Elegante appartamento in vendita a Lucca, situato in zona centrale. Questo immobile, caratterizzato da una superficie di 135 mq, è di discreta metratura, si sviluppa in locali molto grandi ed è attualmente in fase di nuova costruzione con consegna prevista per marzo 2026. L'appartamento, ubicato al 3° piano con ascensore, vanta un ingresso in ampio salone, sala da pranzo, cucina, due camere matrimoniali, una delle quali corredata da bagno con vasca e doccia e stanza armadi, altri due bagni e locale tecnico. Ristrutturato con materiali di pregio e tecnologie moderne, mantiene il fascino della sua origine risalente al 1600. Le spese condominiali ammontano a 120 Euro mensili. [Classe energetica: D]

  • Invia ad un amico
  • Segnala abuso