vendita appartamento Livorno
Pubblicato il 26 dicembre 2025 alle ore 23:17












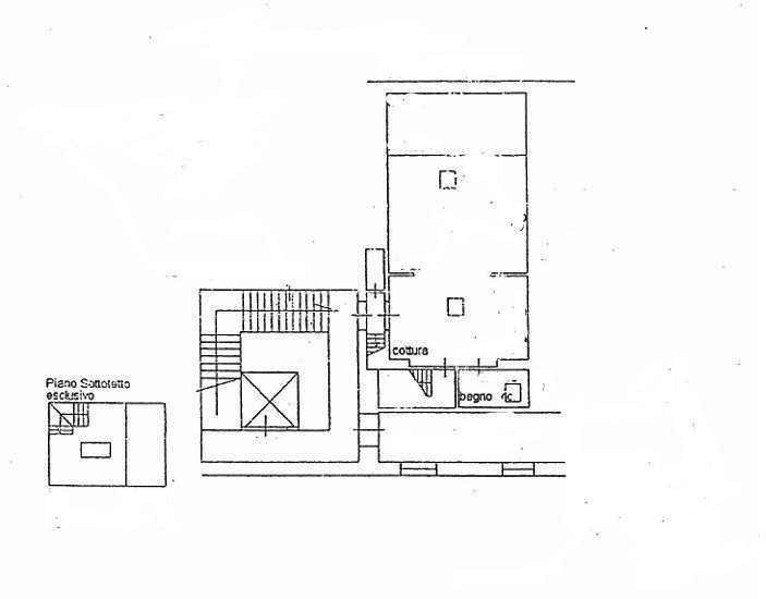
Zona Centro-Rif.71: Comoda mansarda posta al 4 piano con ascensore, ideale come investimento, composta da: cucina abitabile , sosggiorno , camera in soppalco , bagno e grande ripostiglio nel sottotetto. Buone condizioni interne, termoautonomo e climatizzato.
La posizione dell'appartamento è strategica per essere raggiunta facilmente con mezzi pubblici, inoltre è ben servita dai negozi , a due passi dal Mercato centrale di Livorno e dalla Fortezza Nuova. Classe energetica : G . € 75.000
QUESTO E MOLTI ALTRI ANNUNCI SONO PRESENTI
SUL NOSTRO SITO www.centroservizimmobiliari.it
SULLA NOSTRA PAGINA FACEBOOK https://m.facebook.com/www.centroservizimmobiliari.it
SULLA NOSTRA PAGINA INSTAGRAM http://www.instagram.com/centroservizimmobiliari
SUL NOSTRO CANALE YOUTUBE https://www.youtube.com/channel/UC4GNjvdCl8eXTYsVQ3LLlHw
- Invia ad un amico
- Segnala abuso