vendita appartamento Larciano
Pubblicato il 25 febbraio 2026 alle ore 00:05

















Larciano, primissima periferia e vicino a tutti i servizi, vendesi appartamento al piano primo di circa 79mq in piccola palazzina di poche unità con ascensore.
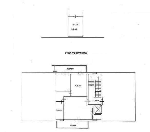
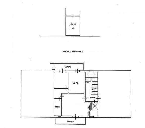
Composto da: ingresso da scala a comune o ascensore, ampio soggiorno con terrazza, cucinotto, disimpegno, camera matrimoniale e cameretta con balcone, bagno finestrato con vasca.
Al piano seminterrato con accesso a comune da rampa carrabile gare di circa 28me e piccola cantinetta di circa dieci.
il tutto in ottimo stato abitativo e con una buona classe energetica (D = 47,34kWh/m^2anno).
Prezzo trattabile.
Rif. A-620
- Invia ad un amico
- Segnala abuso