Vendita Appartamento Desenzano del Garda
Pubblicato il 10 febbraio 2026 alle ore 09:03











Un'icona di stile affacciata sulle acque del Lago di Garda
Costruita negli anni Quaranta del Novecento, Villa Olympia è un edificio iconico nel panorama di Desenzano del Garda e ne rappresenta un'importante testimonianza storica e architettonica. La sua posizione privilegiata, direttamente affacciata sul lago e a pochi passi dal centro storico, la colloca in un scenario di particolare pregio. Villa Olympia è attualmente oggetto di un intervento conservativo finalizzato a valorizzare e riportare alla luce tutto lo splendore dell'edificio.
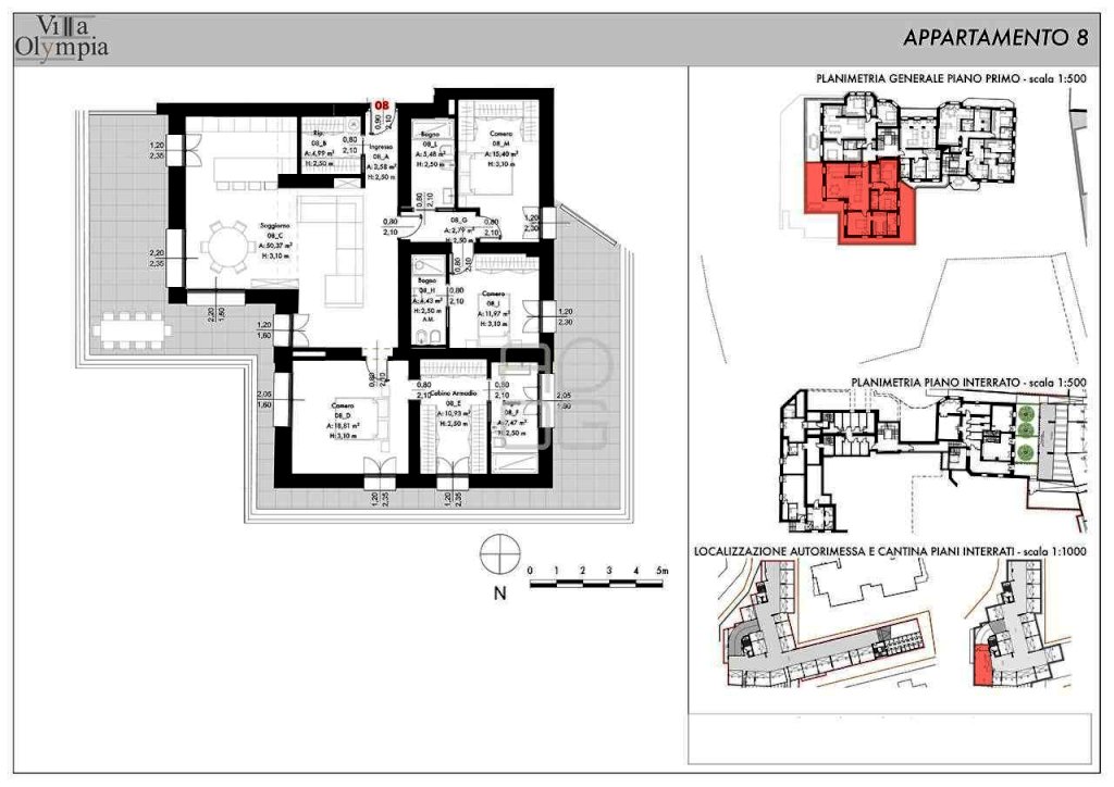
Al primo piano di questo contesto dotato di piscina condominiale e ascensore e composto da 20 unità abitative, proponiamo in vendita l'unità abitativa n. 8: un meraviglioso appartamento che ospita l'ampia zona living di oltre 50 mq con cucina a vista ed accesso diretto alla terrazza esclusiva di oltre 83 mq che abbraccia tutto il perimetro dell'immobile, luogo straordinario per ammirare l'unicità del paesaggio e della vista lago, la camera padronale con cabina armadio e bagno en-suite, la seconda camera da letto matrimoniale, la terza camera da letto doppia con bagno en-suite, il terzo bagno e un ripostiglio/lavanderia. A completare la proprietà, troviamo al piano interrato un garage quadruplo con annessa cantina.
All'interno di Villa Olympia sono disponibili anche altre soluzioni abitative, tutte progettate per valorizzare l'eleganza senza tempo del contesto, dare forma ad ambienti interni ricchi di fascino e connettere gli spazi esterni con l'ambiente circostante.
Villa Olympia è sinonimo di bellezza e raffinatezza. È una residenza unica collocata in una delle località più conosciute ed apprezzate del Lago di Garda.
Contattaci e lasciati conquistare dall'esperienza di vivere la storia senza rinunciare alle comodità dell'abitare di oggi.
CLASSE ENERGETICA:
- Invia ad un amico
- Segnala abuso