Vendita Appartamento Desenzano del Garda
Pubblicato il 10 febbraio 2026 alle ore 09:20











Un'icona di stile affacciata sulle acque del Lago di Garda
Costruita negli anni Quaranta del Novecento, Villa Olympia è un edificio iconico nel panorama di Desenzano del Garda e ne rappresenta un'importante testimonianza storica e architettonica. La sua posizione privilegiata, direttamente affacciata sul lago e a pochi passi dal centro storico, la colloca in un scenario di particolare pregio. Villa Olympia è attualmente oggetto di un intervento conservativo finalizzato a valorizzare e riportare alla luce tutto lo splendore dell'edificio.
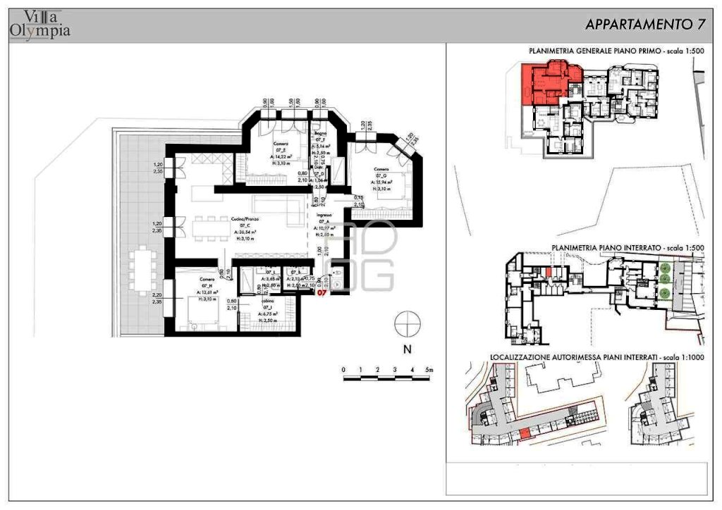
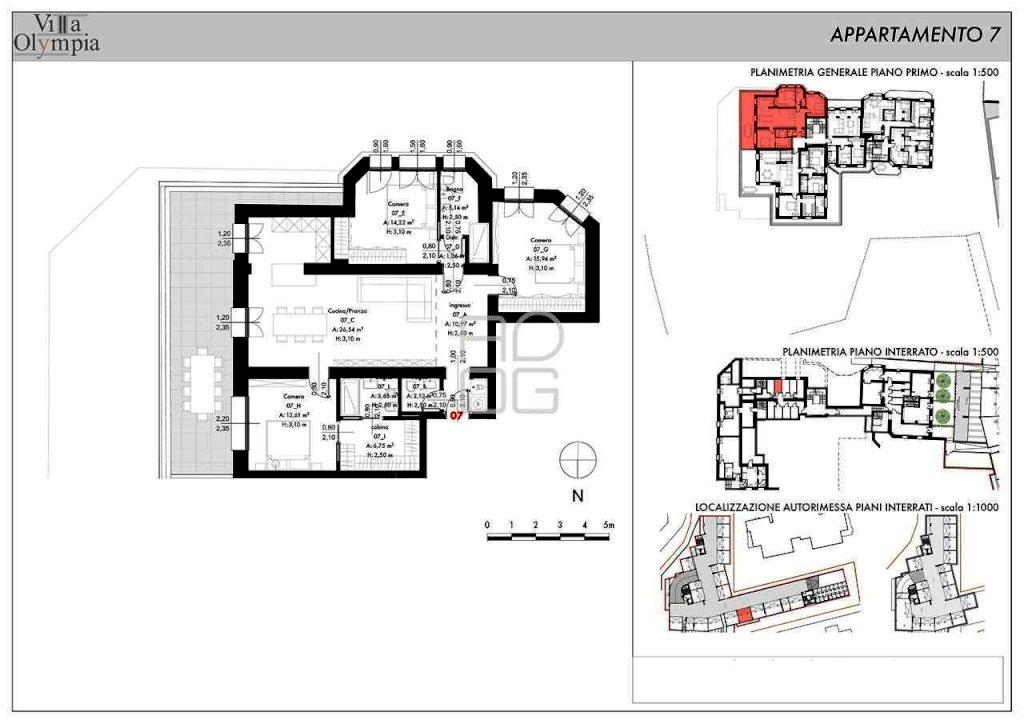
Al primo piano di questo contesto dotato di piscina condominiale e ascensore e composto da 20 unità abitative, proponiamo in vendita l'unità abitativa n. 7: un meraviglioso appartamento che ospita l'ampia zona living con cucina a vista ed accesso diretto alla terrazza esclusiva di oltre 36 mq, luogo straordinario per ammirare l'unicità del paesaggio e della vista lago, la camera padronale con cabina armadio e bagno en-suite, la seconda camera da letto matrimoniale con bagno en-suite, la terza camera da letto matrimoniale, il terzo bagno di servizio e il ripostiglio/lavanderia. A completare la proprietà, troviamo al piano interrato un garage doppio e una cantina.
All'interno di Villa Olympia sono disponibili anche altre soluzioni abitative, tutte progettate per valorizzare l'eleganza senza tempo del contesto, dare forma ad ambienti interni ricchi di fascino e connettere gli spazi esterni con l'ambiente circostante.
Villa Olympia è sinonimo di bellezza e raffinatezza. È una residenza unica collocata in una delle località più conosciute ed apprezzate del Lago di Garda.
Contattaci e lasciati conquistare dall'esperienza di vivere la storia senza rinunciare alle comodità dell'abitare di oggi.
CLASSE ENERGETICA:
- Invia ad un amico
- Segnala abuso