vendita appartamento Certaldo
Pubblicato il 15 marzo 2026 alle ore 23:33













L'Agenzia Immobiliare Cinelli, propone la vendita di un appartamento in piccolo condominio, zona semicentrale .
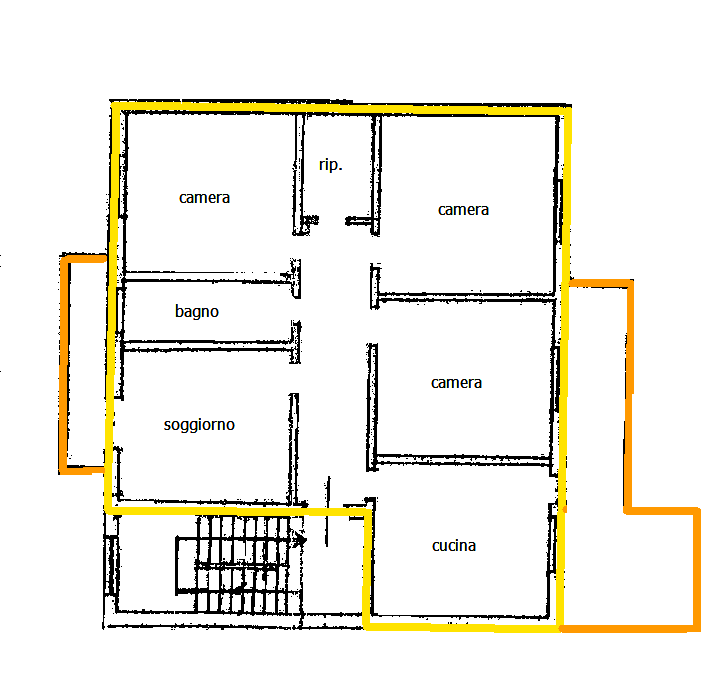
L'appartamento occupa tutto il 2°e ultimo piano, in un piccolo condominio di soli due appartamenti, ed è composto da un ampio ingresso, cucina, con cucinotto, soggiorno, tre camere matrimoniali, ampio ripostiglio, bagno, un balcone ed una terrazza abitabile, con accesso dalla cucina, oltre ad un piccolo vano al piano terra, adatto, per ripostiglio, deposito biciclette, o altro. Soffitta praticabile dove è possibile ricavare un ulteriore spazio abitativo. NO SPESE CONDOMINIALI. L'appartamento è libero.
L’Immobiliare Cinelli ci tiene a precisare che le caratteristiche tecniche, disposizione interna e accessori indicati, poterebbero in alcuni casi essere diversi dall’effettivo stato di fatto dell’immobile, l’Agenzia Immobiliare declina ogni responsabilità per eventuali involontarie incoerenze. Per garantire la privacy, La posizione dell'immobile è solo indicativa della zona e l'indirizzo inserito nell'annuncio non è quello reale, per maggiori dettagli, vi invitiamo a contattare il ns. ufficio ai seguenti numeri: 0571664828 – 3355410553 - 3387294822. Oppure inviandoci una mail all’indirizzo: info@immobiliarecinelli.it
- Invia ad un amico
- Segnala abuso