vendita appartamento Cascina
Pubblicato il 31 dicembre 2025 alle ore 00:46









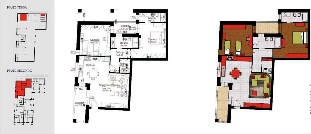
CASCINA-Intervento edilizio denominato LUXURY APARTMENTS per la costruzione di otto appartamenti di varie metrature, tutti dotati di terrazza, due posti auto coperti e cantinetta, con finiture esterne e interne di prim'ordine, in classe energetica A4, in un contesto cittadino storico e vitale. L'edificio viene costruito secondo i rigorosi standard energetici CasaClima, garantendo un elevato confort abitativo, un ambiente salubre e un notevole risparmio energetico e di gestione. L'investimento in tecnologie e sistemi costruttivi di comprovata affidabilità si traduce in un significativo miglioramento della qualità dell'abitare. Le dotazioni tecnologiche di ogni unità abitativa unite a caratteristiche costruttive e finiture di alto livello, vanno a favore della qualità dell'abitare del contenimento dei costi energetici.
L'appartamento N 8 posto al piano secondo é composto da grande cucina-pranzo-soggiorno con terrazza, disimpegno notte, ripostiglio, due camere matrimoniali con accesso alla terrazza (loggia) e due bagni entrambi con finestra . L'appartamento é corredato al piano terra da due posti auto ed una cantinetta. Dal piano terra si raggiunge il primo e secondo piano tramite ascensore. L'esterno del fabbricato é completamente rivestito in marmo tipo travertino. IMMOBILE DI PRESTIGIO....... BELLISSIMO
Per informazioni 3400763171 Claudio Ricci
- Invia ad un amico
- Segnala abuso