vendita appartamento Cascina
Pubblicato il 29 gennaio 2026 alle ore 23:05





















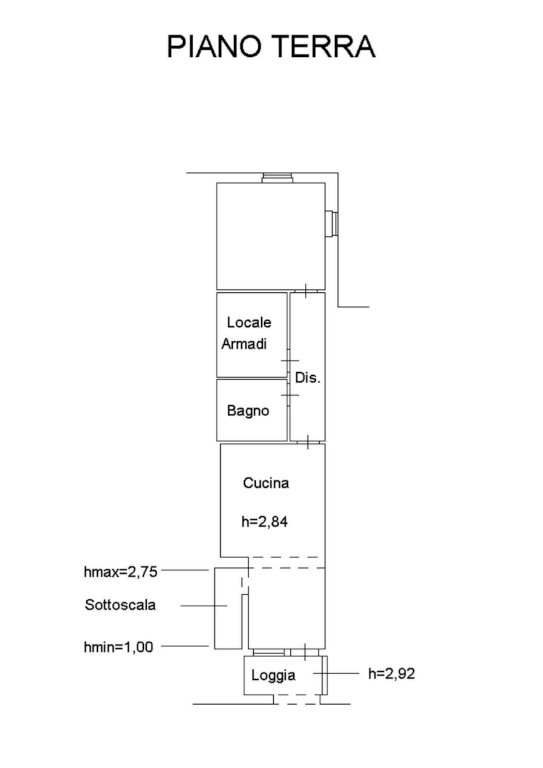
L075 – CASCINA CENTRO - ESCLUSIVA – Nel centro del paese, delizioso appartamento INDIPENDENTE completamente ristrutturato posto al piano terra con ingresso INDIPENDENTE da resede ESCLUSIVO e composto da ampia zona giorno con angolo cottura e ripostiglio, disimpegno notte, camera matrimoniale, studio o seconda cameretta e bagno. Subito disponibile. Classe Energetica “G”, EP gl, nrn 245.8420 kWh/m2anno. Euro 145000
- Invia ad un amico
- Segnala abuso