vendita appartamento Cascina
Pubblicato il 04 novembre 2025 alle ore 23:19

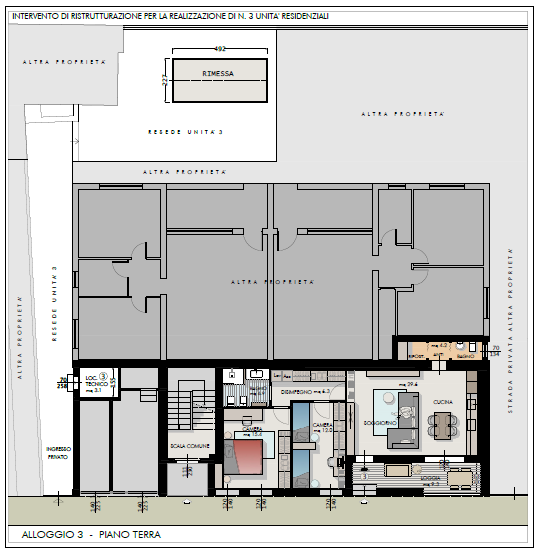
Rif. V1050 (Appartamento 3) CASCINA APPARTAMENTO 3 VANI di circa 75 mq, inserito in piccolo fabbricato in fase di completa ristrutturazione, si sviluppa su unico livello al piano terra, al quale si accede da una loggia esterna indipendente. E' corredato in proprietà di un resede esterno di circa 30 mq, non direttamente collegato all'appartamento, su cui insiste un comodissima rimessa di circa 11 mq in legno e dove trova l'ingresso un locale tecnico. Il progetto prevede la seguente suddivisione: dalla loggia esterna sfuttabile nei mesi estivi come zona relax, si accede alla zona giorno, open space di quasi 30 mq, dotata di bagno di servizio e comodo ripostiglio. Il disimpegno notte da cui avviene l'accesso alle due camere (1 matrimoniale, 1 media) è uno spazio ampio da poter arredare con capiente armadio a muro per il cambio stagione, infine un ampio bagno finestrato.
Dal punto di vista tecnologico è stata posta attenzione alle nuove tecnologie e sistemi costruttivi moderni per ottenere un significativo miglioramento del confort abitativo con un ambiente salubre oltre che un elevato risparmio energetico e di gestione. Le finiture previste da capitolato sono di pregio e comunque a scelta del cliente. Le dotazioni dal punto di vista energetico: riscaldamento a pavimento radiante infissi in pvc che garantiscono un buon isolamento termo-acustico, disposizione del piano cottura a induzione, pannelli fotovoltaici (predisposizione per batterie di accumulo), pompe di calore, predisposizione clima e allarme. Alla fine, ricadrà nella classe sismica A, il che significa che sarà molto efficiente dal punto di vista energetico. Richiesta €265.000.
Infine va ricordato che il fabbricato di cui fa parte l'unità immobiliare è inserito in un decoroso contesto residenziale, a due passi da ogni servizio e soprattutto dal centro del paese, che può essere facilmente raggiunto a piedi. Se hai bisogno di ulteriori informazioni o vuoi fissare un appuntamento per una visita sul posto, puoi contattare l'agenzia. La consegna è prevista prima della fine dell'anno.
- Invia ad un amico
- Segnala abuso