vendita appartamento Capraia e Limite
Pubblicato il 24 febbraio 2026 alle ore 00:46











CERCHI UN APPARTAMENTO CON GIARDINO DI NUOVA COSTRUZIONE?
Se lo cerchi a Limite e Capraia, oggi è possibile! Continua a leggere...
NUOVO CANTIERE!
CLASSE ENERGETICA A!
VARIE METRATURE!
INGRESSO INDIPENDENTE
CONSEGNA PREVISTA: OTTOBRE 2026!
Nuove costruzioni, tecnologicamente all'avanguardia e con possibilità di personalizzazione delle finiture. Assolutamente al top per il mercato di zona per posizione e accuratezza architettonica.
Andranno certamente a ruba!
CONTESTO:
Limite sull’Arno, in posizione defilata e residenziale, vicino a tutti i servizi e anche alla strada di grande comunicazioni FI-PI-LI, grazie al nuovo ponte sull’Arno in costruzione.
Se prima era un paese ‘isolato’ e ‘scomodo’, adesso Limite sull’Arno sta vivendo una vera e propria rinascita, grazie al nuovo collegamento infrastrutturale col Empoli/Montelupo.
IL NUOVO COMPLESSO:
Nell'intervento sono disponibili 4 appartamenti.
Prezzi e metrature variabili.
Chiedi tutti i dettagli in Agenzia.
DUE ESEMPI:
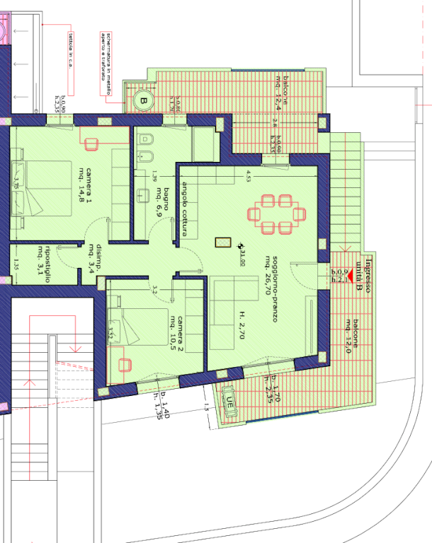
"APPARTAMENTO A":
Circa 71 mq calpestabili, circa 100 mq commerciali.
Ingresso indipendente, libero su 3 lati e così disposto:
Al piano terra rialzato:
- Due balconi abitabili (8,6 mq e 6,5 mq) e scala esterna di ingresso, disposti su 3 lati dell’appartamento
- Living Open space di circa 30 mq
- Bagno 1 finestrato con doccia
- Bagno 2 con doccia e aspiratore
- Camera 1 di circa 14,4 mq
- Camera 2 di circa 12,1 mq
- Ripostiglio
Al piano terra:
Giardino/resede di circa 110 mq
Posti auto per circa 40 mq
Prezzo al mq commerciale: circa Euro 3.680 + IVA
Prezzo richiesto: Euro 368.000 + IVA
"APPARTAMENTO B":
Circa 66 mq calpestabili, circa 93 mq commerciali.
Ingresso indipendente, libero su 3 lati e così disposto:
Al piano terra rialzato:
- Due balconi abitabili (12,4 mq e 12 mq) e scala esterna di ingresso, disposti su 3 lati dell’appartamento
- Living Open space di circa 27 mq
- Bagno 1 finestrato di circa 7 mq, con doccia
- Camera 1 di circa 14,8 mq
- Camera 2 di circa 10,5 mq
- Ripostiglio (possibile Bagno 2)
Al piano terra:
Giardino/resede di circa 100 mq
Posti auto per circa 30 mq
Prezzo al mq commerciale: circa Euro 3.634 + IVA
Prezzo richiesto: Euro 338.000 + IVA
ALTRE TIPOLOGIE:
Sono al momento disponibili altri 2 appartamenti al piano primo, con ingresso in due e posti auto esclusivi.
https://www.immobiliare-serena.it/it/1392650-vendita-appartamento-capraia-e-limite
QUALCOSA IN PIÙ SULLE TECNOLOGIE IMPLEMENTATE:
L’intervento nasce dal frazionamento di un fabbricato esistente, ristrutturato per garantire comfort abitativo ed efficienza energetica. Le unità saranno in classe energetica A.
Da capitolato:
- Riscaldamento con termoconvettori fan-coil con pompa di calore
- Acqua calda sanitaria con pompa di calore
- Pannelli fotovoltaici 4 kw
- Inverter e predisposizione accumulo
- Predisposizione per scambiatore (ventilazione meccanica)
- Impianto videocitofonico e predisposizione per allarme
- Pareti divisorie coibentate
- Cappotto termico
- Infissi in PVC con vetrocamera
- Possibilità di impianto di riscaldamento radiante
CHIAMA IN AGENZIA E SCOPRILE INSIEME A NOI.
Se per la tua famiglia vuoi il meglio del mercato, non esitate a chiamare.
Euro 368.000
(RIF. 9708)
- Invia ad un amico
- Segnala abuso