vendita appartamento Capraia e Limite
Pubblicato il 13 gennaio 2026 alle ore 23:18











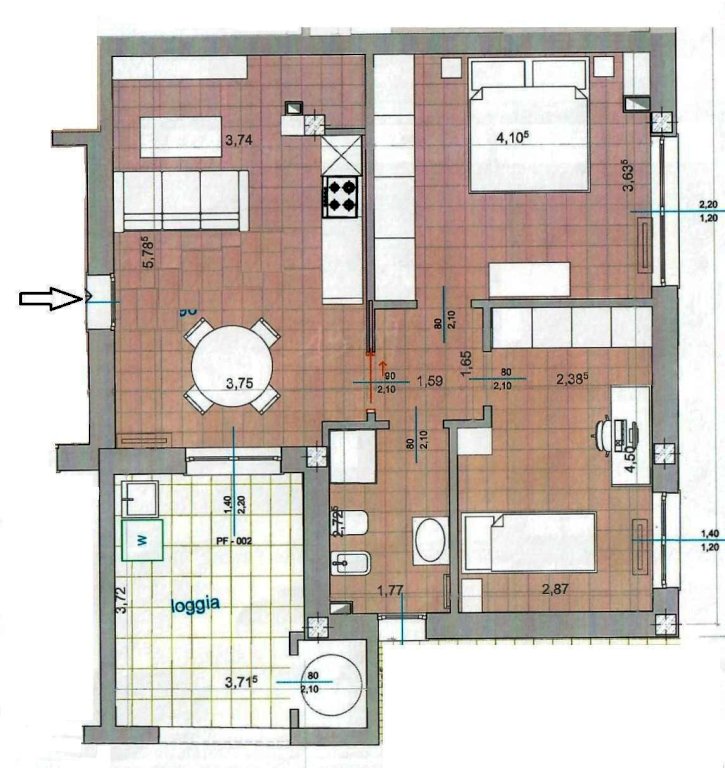
LIMITE SULL'ARNO - TRILOCALE IN NUOVA COSTRUZIONE - CLASSE EN. A4 - Rif. 1/1003 - Immobile di nuova realizzazione, al piano rialzato appartamento composto da ampia zona giorno con bel loggiato vivibile, ideale per pranzi e cene all'aperto, oltre a predisposizione per zona lavanderia, disimpegno notte, camera matrimoniale e cameretta oltre a bagno con finestra.
Spazi ottimamente distribuiti. Consegna prevista a primavera 2026. All'interno della corte condominiale due posti auto di proprietà di cui uno coperto. Immobile realizzato con le nuove tecnologie sia per quanto riguarda l'antisismica che l'isolamento termo/acustico e l'impiantistica con pannelli fotovoltaici per l'alimentazione dell'impianto di riscaldamento e raffrescamento, infissi in PVC a taglio termico, ecc. Ottimo capitolato per le rifiniture che comprende anche la fornitura di una cucina componibile compresa nel prezzo. Si precisa che le foto non sono reali e puramente indicative e che l'indirizzo presente non identifica l'esatta ubicazione dell'immobile questo al fine di tutelare la privacy e la riservatezza del venditore. Classe energetica: A4 - Rif. 1/1003 - EURO 250.000
- Invia ad un amico
- Segnala abuso