Vendita Appartamento Capannori
Pubblicato il 30 ottobre 2025 alle ore 09:04







 
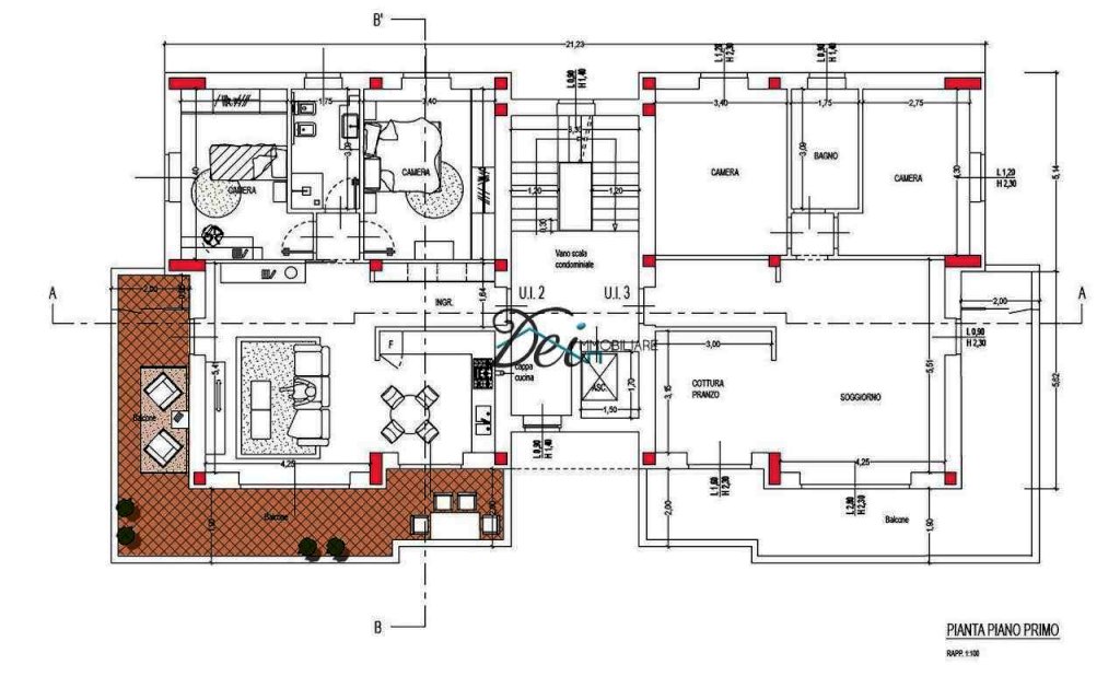
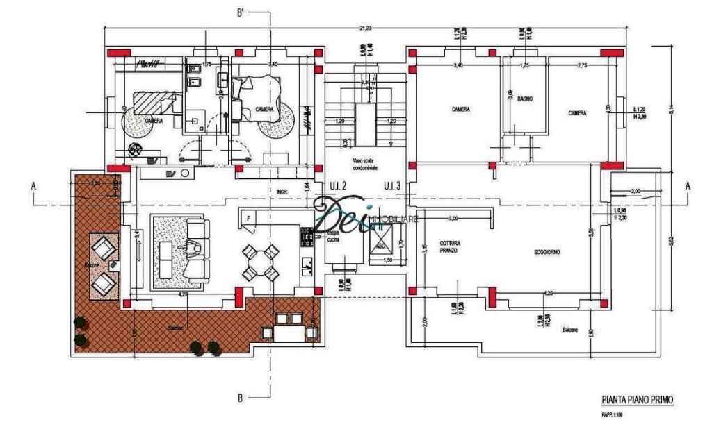
							MARLIA - Appartamento di 85 mq in classe energetica A4 situato al primo piano con ascensore, di un immobile di nuova costruzione composto da cinque unità, in zona tranquilla e vicina a tutti i servizi.
L'immobile ha la seguente disposizione interna:
Ingresso, luminoso soggiorno con angolo cottura e accesso a una spaziosa terrazza di 25 mq, disimpegno, una camera matrimoniale, una camera doppia e un bagno finestrato con doccia.
La proprietà è corredata da garage di 15 mq e un posto auto privato.
Sul terrazzo si trova un vano tecnico con boiler da 200 litri, lavatrice, asciugatrice e lavatoio.
L'abitazione è dotata di tecnologie moderne come un impianto fotovoltaico da 5 kW, riscaldamento a pavimento e sistema caldo/freddo con pompa di calore, che assicurano classe energetica A4 e consumi notevolmente ridotti.
Il complesso è realizzato con materiali di altissima qualità e tecnologie all'avanguardia.
Sono disponibili anche altri appartamenti al secondo piano.
Possibilità di importanti detrazioni fiscali in 10 anni.
PER MOTIVI DI PRIVACY L'INDIRIZZO INDICATO NELL'ANNUNCIO NON CORRISPONDE ALLA REALE UBICAZIONE DELL'IMMOBILE. CONTATTACI PER AVERE PIÙ DETTAGLI.
PUOI TROVARE TUTTE LE OFFERTE AGGIORNATE SUL NOSTRO SITO INTERNET: www.deimmobiliare.com
SEGUICI ANCHE SULLA NOSTRA PAGINA FACEBOOK Dei Immobiliare
D E I I M M O B I L I A R E - Via Pesciatina 173 Lunata (LU) TEL UFFICIO: 0583.920498 CELL. 329.3166782 - EMAIL: studioimdei@gmail.com
SELEZIONIAMO CON CURA GLI IMMOBILI PIU' INTERESSANTI, NELLE VARIE ZONE DELLA PROVINCIA DI LUCCA. CONTATTACI PER RICHIESTE E INFORMAZIONI AGGIUNTIVE.
CLASSE ENERGETICA: 3 kWh/m2 a
- Invia ad un amico
- Segnala abuso