Vendita Appartamento Bagnolo Piemonte
Pubblicato il 05 novembre 2025 alle ore 21:32







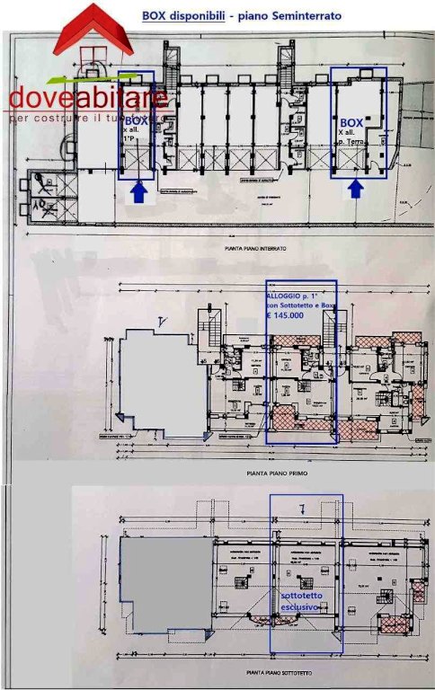
Bagnolo inizio paese in zona Villaretto - OTTIMA OPPORTUNITA'!
in complesso residenziale costruito negli ultimi 15 anni,
alloggio al p. primo con terrazzo e box, riscaldamento a pavimento da ultimare internamente con possibilità di scelta materiali di finitura (piastrelle e porte interne)
La soluzione è così composta: ingresso su soggiorno, cucina con affaccio su terrazzo, disimpegno, 1 camera, 1 bagno finestrato oltre a sottotetto finestrato con arrivo degli impianti con predisposizione per 2 bagno e balconcino.
Termoautonomo con riscaldamento tramite pavimento radiante.
Completano la proprietà porta blindata, videocitofono e un comodo parcheggio esterno.
Al p. interrato: comoda cantina areata e BOX DOPPIO
La richiesta dei 145.000EURO si riferisce per l'acquisto dell'alloggio con la cantina e il box doppio incluso.
Subito DISPONIBILE!! Chiama ora: 0121/480.334
CLASSE ENERGETICA: C 107,51 kWh/m2 a
- Invia ad un amico
- Segnala abuso