Affitto Villa Forte dei Marmi
Pubblicato il 31 ottobre 2025 alle ore 21:33



















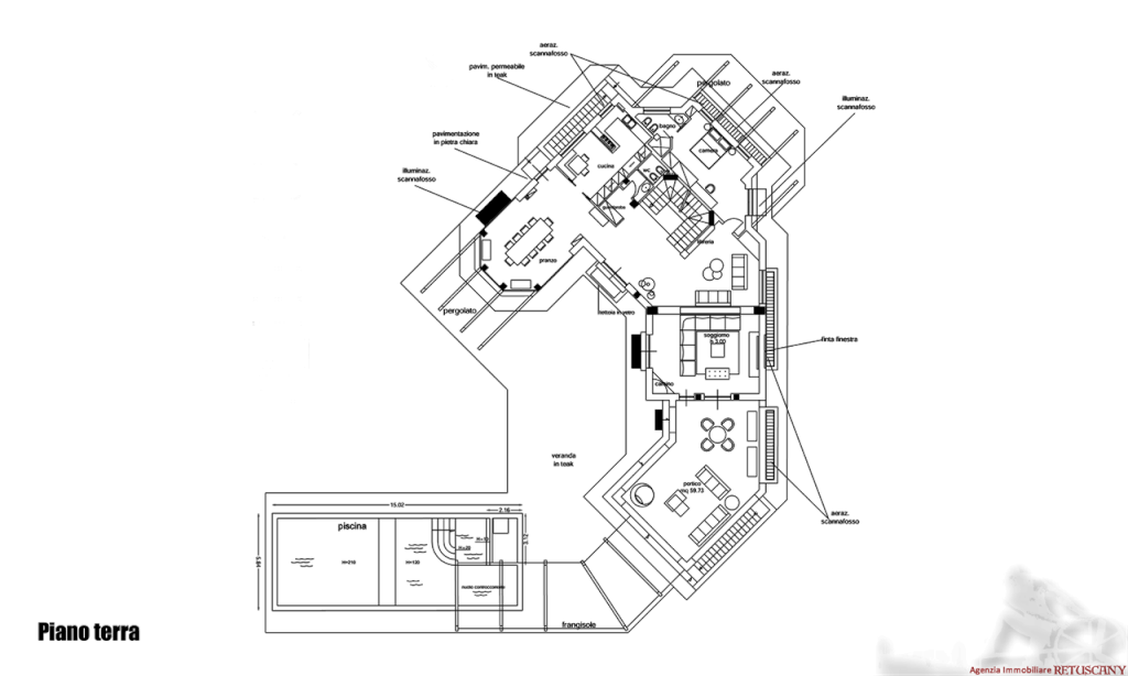
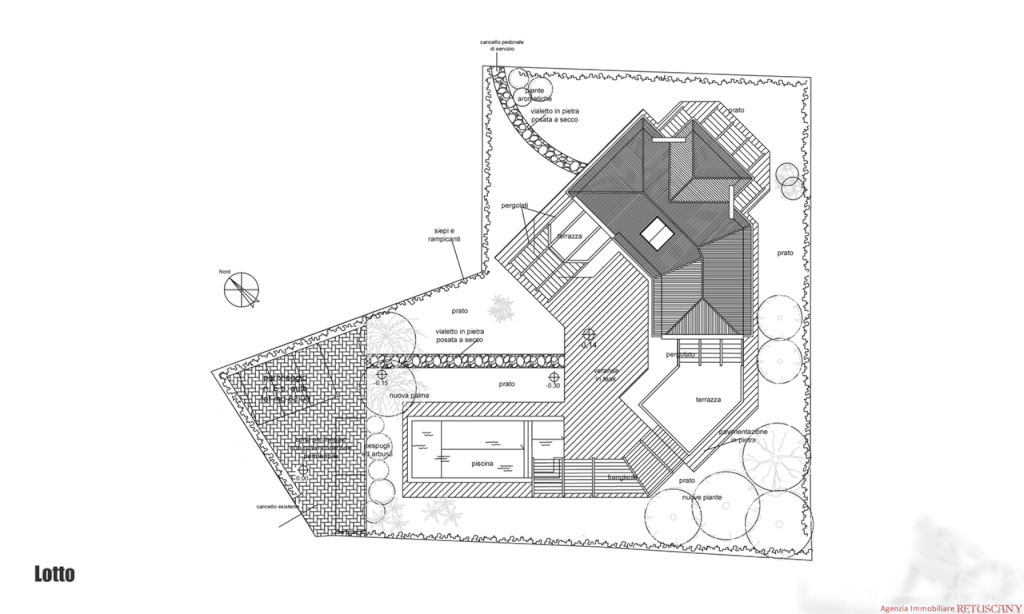
Villa singola disposta su due piani fuori terra oltre all'interrato, con ampio giardino con piscina. Abitazione di circa 570 mq, lotto di circa 1.500 mq, distanza dal mare circa 1.400 metri. Al piano terra: ingresso da porticati, ampio doppio salone, pranzo, cucina abitabile, camera matrimoniale con bagno, bagno di servizio. Al piano primo: due camere matrimoniali con bagno interno, due camere doppie con bagno interno, disimpegno. Al piano interrato con doppio accesso: sala cinema, palestra, lavanderia, camera matrimoniale con bagno, monolocale con bagno per il personale. Con impianti e dotazioni tecnologiche di alto livello.
CLASSE ENERGETICA: In fase di valutazione (Classe Energetica in fase di richiesta)
- Invia ad un amico
- Segnala abuso