Affitto Ufficio Frosinone
Pubblicato il 08 ottobre 2025 alle ore 22:01























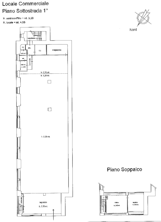
Frosinone Alta, Largo Sant'Antonio, Vi proponiamo la locazione di un ufficio sito al primo piano con affaccio sulla strada. L'ufficio è composto da 5 camere, balcone e servizio, ed è disponibile immediatamente.
CasaItalia. Esperienza ed innovazione immobiliare dal 1985.
Nel rispetto della legge vigente si dichiara che l'immobile e' in classe energetica G e l'IPE (indice di prestazione energetica) e' minore od uguale a 175 kWh/mq annuo.
CLASSE ENERGETICA: G
- Invia ad un amico
- Segnala abuso