Vendita Trilocale Induno Olona
Pubblicato il 30 ottobre 2025 alle ore 21:03
















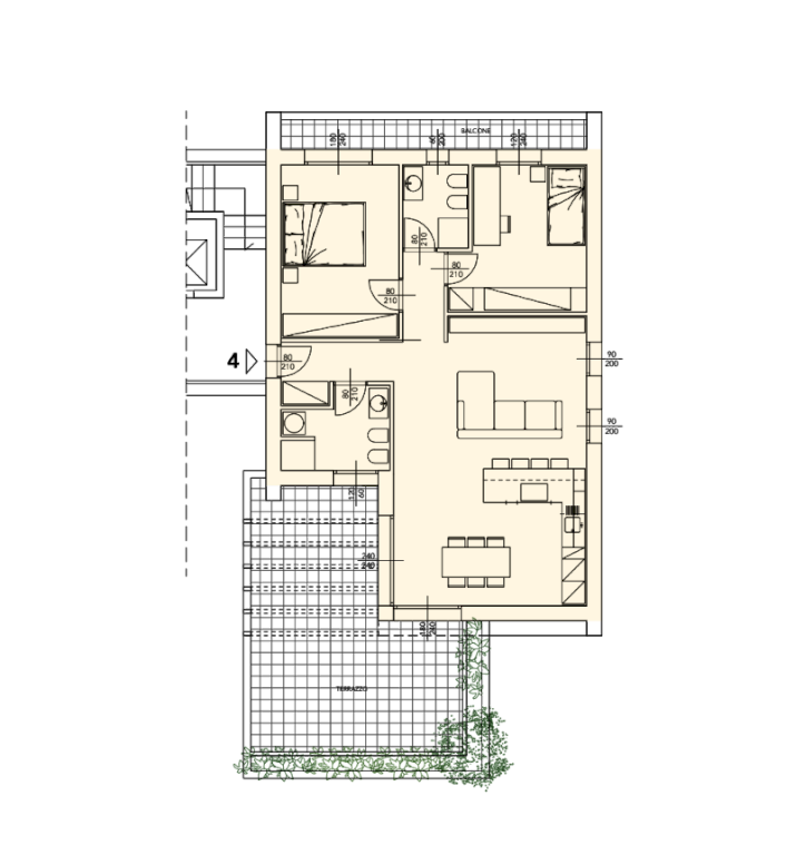
In una palazzina tranquilla di soli sei unità situata a Induno Olona, si realizzerà appartamento trilocale di circa 100 mq, con ampio terrazzo di 40 mq.
L'appartamento è strutturato da ampio soggiorno con cucina a vista creando uno spazio confortevole per la famiglia. Dopodichè si presentano una camera matrimoniale, una camera singola e doppi servizi, infine dalla zona giorno abbiamo l'ingresso che porta all'ampio terrazzo.
L'appartamento si conclude con una cantina e con la possibilità di acquistare uno spazioso box doppio al prezzo di 30.000EURO.
Ottima possibilità per chi desidera un immobile moderno, confortevole e con ampi spazi.
Oltretutto la zona in cui è posizionato l'immobile è ottimo in quanto è posta in zona centrale e ben collegata da molti servizi principali. Facile il raggiungimento di Varese e i confini Svizzeri.
In nuova palazzina, di soli sei unità, si realizza appartamento bilocale con terrazzo, posto al secondo piano.
L'appartamento di 60 mq, è composto da ingresso, zona giorno con cucina a vista nel quale c'è l'ingresso dell'ampia terrazza di circa 40 mq, che circonda la zona giorno fino ad arrivare alla camera matrimoniale, poi troviamo il bagno.
L'immobile inoltre possiede la cantina, e c'è la possibilità di acquistare box singolo al prezzo di 15.000EURO.
Posizionato in zona ottimale e centrale vista la vicinanza ai servizi principali, comoda anche per il facile raggiungimento di Varese e i confini Svizzeri.
Inoltre compreso nel prezzo di vetrina c'è la possibilità di avere la cucina 3,60 m Ernesto Meda, partner Arredo più.
Cantiere già in corso per la realizzazione della palazzina.
Non esitate a contattarci per fissare un appuntamento per avere maggiori informazioni. Cantiere già in corso per la realizzazione della palazzina.
Non esitate a contattarci per fissare un appuntamento per avere maggiori informazioni.
CLASSE ENERGETICA:
- Invia ad un amico
- Segnala abuso