Vendita Casa singola Beura-Cardezza
Pubblicato il 31 ottobre 2025 alle ore 09:33
























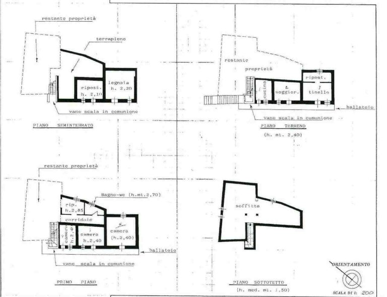
Nel comune di Beura Cardezza, in località Cuzzego, in posizione tranquilla e periferica, vendiamo grande casa indipendente su tre livelli.
La casa si divide in due porzioni, una porzione abitata fino a pochi anni fa e la seconda porzione al momento ancora al rustico.
La porzione ad uso abitativo si compone al piano terra da cantina e deposito, al primo piano da cucina abitabile, soggiorno e ripostiglio, balcone e terrazzo. Al piano superiore raggiungibile tramite scala esterna vi sono due camere matrimoniali, bagno con vasca e lungo balcone.
La porzione al momento al rustico si presta a poter realizzare una seconda abitazione e gode di vista ampia con bella apertura panoramica. Completano la proprietà grande giardino recintato di circa 200 mq con accesso carrabile e ampia tettoia adibita a posti auto.
CLASSE ENERGETICA: In fase di valutazione (Classe Energetica in fase di richiesta)
- Invia ad un amico
- Segnala abuso